Noordweg 6, Pijnacker

Bekijk 34 foto's

Bekijk 34 foto's

Bekijk 34 foto's
Heeft u interesse?
Neem contact met ons op. We geven graag meer informatie of plannen een bezichting.
Prijs
€ 435.000 k.k.
Woningtype
Geschakelde woning
Woonoppervlakte
97 m²
Kamers
4
Kenmerken
- Prijs
- € 435.000 k.k.
- Status
- Beschikbaar
- Oplevering
- In overleg
- Adres
- Noordweg 6
- Postcode
- 2641 AL
- Plaats
- Pijnacker
- Wijk
- Pijnacker Noord
Aanvaarding
Bouw
- Soort woonhuis
- Eengezinswoning, Geschakelde woning
- Soort bouw
- Bestaande bouw
- Bouwjaar
- 1958
- Onderhoud binnen
- Goed
- Onderhoud buiten
- Goed
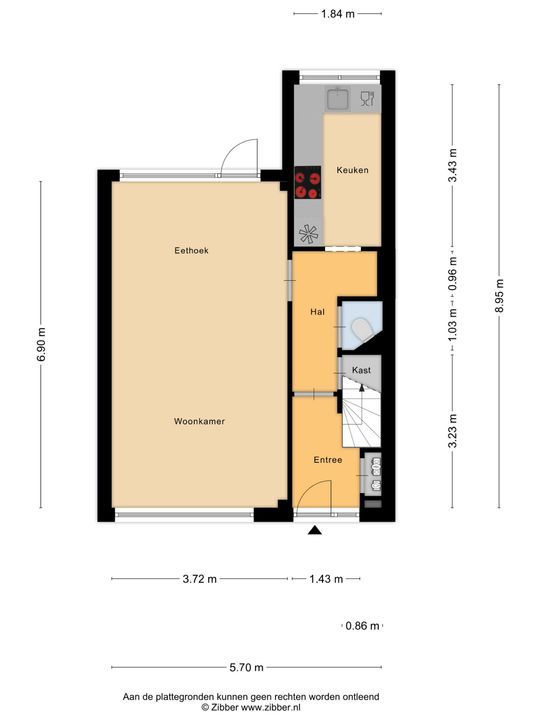
Oppervlakten en inhoud
- Woonoppervlakte
- ca. 97 m²
- Perceeloppervlakte
- ca. 87 m²
- Oppervlakte woonkamer
- ca. 26 m²
- Inhoud
- ca. 344 m³
Indeling
- Aantal kamers
- 4
- Aantal slaapkamers
- 3
- Aantal badkamers
- 1
- Aantal verdiepingen
- 3
- Voorzieningen
- TV-Kabel, Glasvezel kabel
Energie
- Energielabel
- C
- Isolatie
- Dakisolatie, Dubbel glas
- Warm water
- C.V.-ketel
- Verwarming
- C.V.-ketel
- Ketel
- (Combi-ketel, Eigendom)
Buitenruimte
- Ligging
- In centrum
- Balkon
- Ja
- Tuin
- Achtertuin
- Achtertuin
- 38m², 630×600cm
Locatie
[{"address": "Noordweg6","zipCode":
"2641 AL","city": "Pijnacker","lat":
52.0192429,"lng": 4.4297343,"heading":
0,"pitch": 0}]
Plattegronden
Bekijk verloop van de zon
Uw browser ondersteunt geen WebGL
Vergelijkbare woningen

Regge 22
Pijnacker